Leased

**HUGE PRICE DROP** MAJOR WAREHOUSE FACILITY, WITH EXCELLENT EXPOSURE

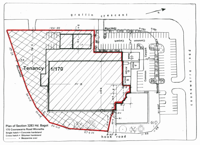
Key Features:
-Exposure to 3 street frontages and major connector road, Darwin- Palmerston - Port
- Minutes from Darwin Commercial Centre.
- 3,637m2 g/l warehouse space with loading dock and 8 electric roller doors. Dock door is 5.75 m wide.
- Airconditioned Offices/showroom/amenities 347 m2
- Mezzanine storage 134m2
- Hardstand ( concrete and bitumen paving) 4,420m2
- Fully fenced.

A well located property in the Winnellie light industrial area, with main access from Coonawarra Road. The premises were originally built for and used for many years as a high-grade cabinet-making and joinery works, In more recent years it has been used as a Defence light storage facility. The main reception and office space is situated at ground level, with access from Coonawarra Road. Separate admin offices are located on a mezzanine level overlooking the main warehouse space. Storage space is located adjacent to this office space. Construction is mainly steel frame with colorbond sheeting. Aluminium and glass â shop-frontâ to offices/showroom areas. Hardstand is principally bitumen paving, with substantial concrete aprons. Easy onsite parking.

For more details and inspection
Bianca Robinson 0448 468 039
Keven Young 08 8943 2432

Address 1, 170 Coonawarra Road, Winnellie
Price $365,000 per annum
Property Type Commercial
Property ID 917
Category Industrial/Warehouse, Offices
Office Area 347m2
Warehouse Area 3,637m2
Floor Area 4,118 m2

Agent Details

Lee Stevenson photo

Lee Stevenson

0448 468 039
View Profile