Sold

PRICE DROP $17,000 - AN IMPRESSIVE $770 PWK RENT

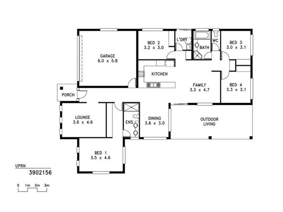
Bellamack is one of Palmerston's newest suburbs it is a terrific family neighbourhood with quality homes throughout. This superior four bedroom home with a swimming pool is returning a substantial $770 per week. As an investor you can comfortably ride out the Darwin property down turn secure in the knowledge the weekly rent for this property can not fall below $770 per week for the entirety of the lease period. A long secure DHA lease until 2/12/2025 plus a 3 year option to DHA. No vacancy periods to detrimentally affect your rental income.

Investing in DHA. This property is for sale on behalf of a DHA lessor and has a DHA lease in place. Visit dha.gov.au to learn about the benefits of investing in DHA property.

Buying a property with a Defence Housing Australia Lease in place helps make investing simple. There are no complications for you with vacancy issues, or rental payments as DHA pay the rent each and every month until lease end. In addition there is the advantage of DHA property care throughout the lease term.

- An superior family home with a separate lounge room
- The home features four generous sized bedrooms
- All four bedrooms feature built in robes the master has an ensuite
- The home is fully tiled and air-conditioned throughout
- Open plan kitchen dining and family space
- The family area opens out to the rear patio
- Double attached garage with direct entry to the home
- A well built comfortable home on a substantial 836 m2 block
- The sparkling swimming pool is fenced for safety


Lease end: 2/12/2025
Lease option: 1 x up to 36 months
Right to Vary: 1 x up to 12 months reduction and 1 x up to 12 months extension
Rent: $770 per week
Review method: greater of market rent or the rent at commencement date
(Note the Option to renew & the Right to Vary is at the discretion of DHA)

In accordance with DHA regulations we advise that this property will be available for private inspection only and to prequalified buyers only. Photos are supplied under agreement by DHA and are for illustration purpose only.

Features

in-Ground Pool
4 2 2
Suburb Bellamack
Price SOLD for $620,000
Property Type Residential
Property ID 1135
Category House

Agent Details

Leah Gelder photo

Leah Gelder

0439 886 991
View Profile