Sold
Stuart Parks best kept secret!
10 Mary St
Stuart Park NT 0820
Get Directions

Stuart Parks best kept secret!

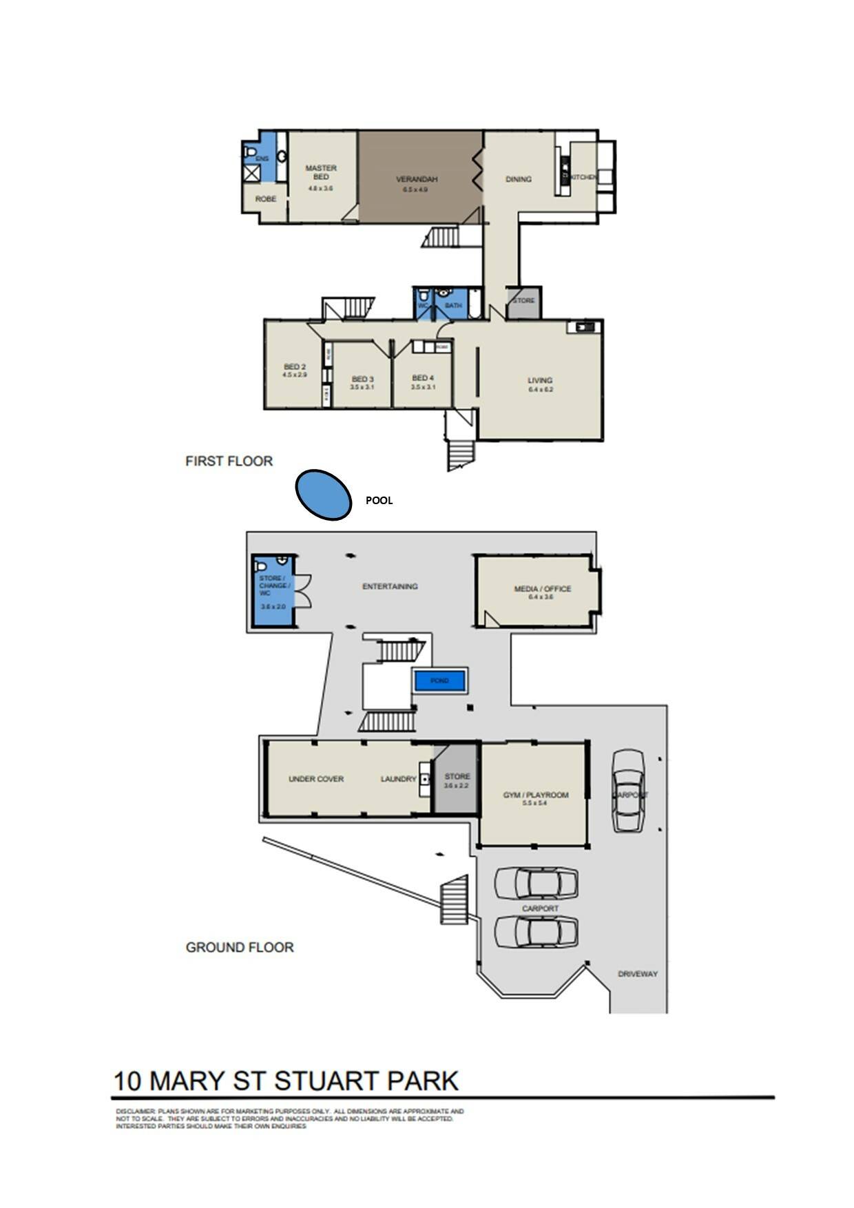
An outstanding home offering a fabulous tropical lifestyle! Be prepared to be surprised.  Pulling up curb side one could be forgiven for thinking this is an unassuming, standard elevated home with an extra room downstairs and good parking.  In fact, nothing could be further from reality.  Tucked behind the main home, is a major separate extension cleverly connected by an internal upstairs passageway.  With two different wings the home offers heaps of space for the whole family to spread out.  Thoughtfully and aesthetically designed by the property owner of many years, an Architect the extension upstairs includes a chef sized kitchen and dining space, an exceptional master suite and the stunning covered entertaining area that sits between.  Bifold timber doors open from the dining space to seamlessly blend the inside with the outside.  The lush rear garden outlook is so private you could be forgiven for thinking this outstanding home is located on a large leafy rural block, instead of in suburbia and just minutes from the City.  Downstairs the extension includes a second spacious covered entertaining space, overlooking the pool plus a practical 2nd storeroom with a third WC handy when entertaining.  At the opposite end of the extension downstairs is the theatre room or if required, a fifth bedroom.   In addition, for the keen fitness fanatic, below the main house is a great sized airconditioned gym extension. 

What we absolutely love about this outstanding property!

- Ideal tropical lifestyle – excellent airflow, louvre windows & mainly timber floors
- The thoughtfully & aesthetically designed major rear extension is simply stunning
- Location & convenience - a popular suburb, in high demand minutes from the City
- An abundance of space - different areas for the family to enjoy inside & outside
- A versatile layout that includes four bedrooms or even five bedrooms if desired
- The broad internal passageway connects the original home & the extension
- The spacious living room, convenient sink, built-in cupboards & space for fridge
- Well designed Chef’s kitchen, wide counter tops, S/S appliances & good storage
- Bi-fold timber doors seamlessly blend the inside, & verandah with the outside
- Stunning verandah looks over the lush garden – hard to believe this is suburbia
- Light filled master suite including a walk-in robe & a good sized ensuite
- For comfort during the impending build-up the home is fully air-conditioned
- An expansive downstairs undercover entertaining area adjacent to the pool
- The 2nd storeroom near the pool has a 3rd WC – handy when entertaining
- The gym extension downstairs in the original home is perfect for fitness fanatics
- Three panels bolt & secure the windows in the theatre room for a cyclone shelter
- The theatre room has a circuit point to enable use of a generator (not supplied)
- Both the pool & the rear yard are securely fenced from the front of the property
- Dual carport extension & additional side carport with gated access to rear yard
- The block is a substantial 1020m2 with no easements

An absolute must to view – be prepared to be surprised!



5 2 3 1,020 m2
Address 10 Mary St, Stuart Park
Price SOLD for $1,065,000
Property Type Residential
Property ID 1922
Category House
Land Area 1,020 m2

Agent Details

Leah Gelder photo

Leah Gelder

0439 886 991
View Profile