Sold

LOOK! FOUR BEDROOMS A DHA LEASE & A NEW PRICE!

Popular Rosebery a family friendly neighbourhood only minutes from Palmerston City Centre and the fabulous new Gateway Shopping Centre. A good family home leased to DHA until 13/07/2021 plus a 3 year option to DHA. A smart investment with a zero vacancy rate where the rent is paid 365 days per year, even if the property becomes vacant for a short period. As DHA throughout the lease term cover the cost of most non-structural repair and maintenance and ‘Like for like’ replacement of fixed appliances as required there is virtually nothing to spend on upkeep.

In addition the lessor may be entitled to a lease-end make-good (refer to the DHA Lease Agreement. 

Investing in DHA - This property is for sale on behalf of a DHA lessor and has a DHA lease in place. Visit dha.gov.au to learn about the benefits of investing in DHA property.

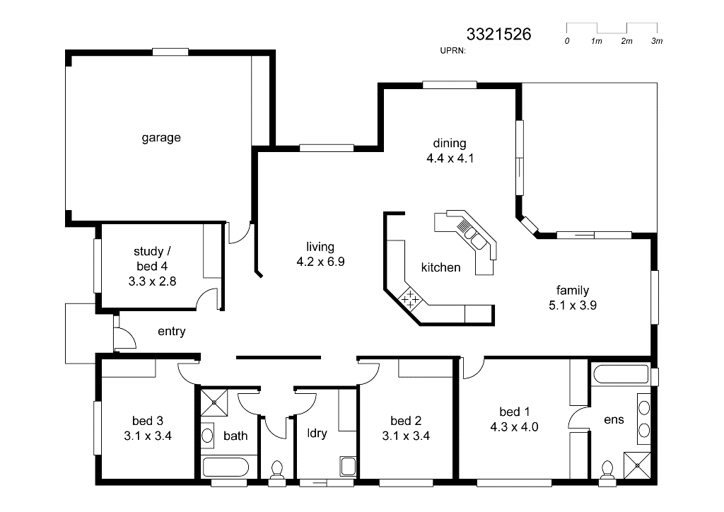
- A practical design and a spacious 257m2 under roof
- Four generous bedrooms all with built-in robes
- Two baths one in the ensuite plus the family bathroom
- Cool floor tiles and Split system air-conditioning throughout
- The kitchen overlooks the family and dining space
- Handy direct from the double garage into the home
- Two sliding door access points out to the rear patio
- At a substantial 702m2 the block is a great size

Lease edition: Edition 5B
Lease end:13/07/2021
Rent: $580 pwk
Option available: 1 x fixed 36 months
Right to Vary available: 1 x up to 12 months Reduction or Extension
(Note the Option and Right to Vary is at the discretion of DHA)

In accordance with DHA regulations we advise that this property will be available for private inspection only and to prequalified buyers only. Photos are supplied under agreement by DHA and are for illustration purpose only.

4 2 2 702 m2
Suburb Rosebery
Price SOLD for $517,500
Property Type Residential
Property ID 1331
Category House
Land Area 702 m2

Agent Details

Leah Gelder photo

Leah Gelder

0439 886 991
View Profile