Sold

ATTENTION! PRICE DROP NEARLY $30,000 - DHA LEASE @ $790 PWK

Attention Investors 6.27% return!  Virtually a buy and forget investment property. Comes with good tenants, is managed for you and has a secure long term lease until January 2023 plus a three year option at an impressive $790 per week. Best of all $790 is the minimum rent you will receive for the entire length of the DHA lease term which is reassuring in times of uncertainty.  A smart investment with zero vacancy rates and little to spend on maintenance.

Lyons is Darwin’s popular suburb with high quality homes throughout. A family friendly neighbourhood only minutes from Darwin, Casuarina Square and Charles Darwin University.

Investing in DHA - This property is for sale on behalf of a DHA lessor and has a DHA lease in place. Visit dha.gov.au to lean about the benefits of investing in DHA property.

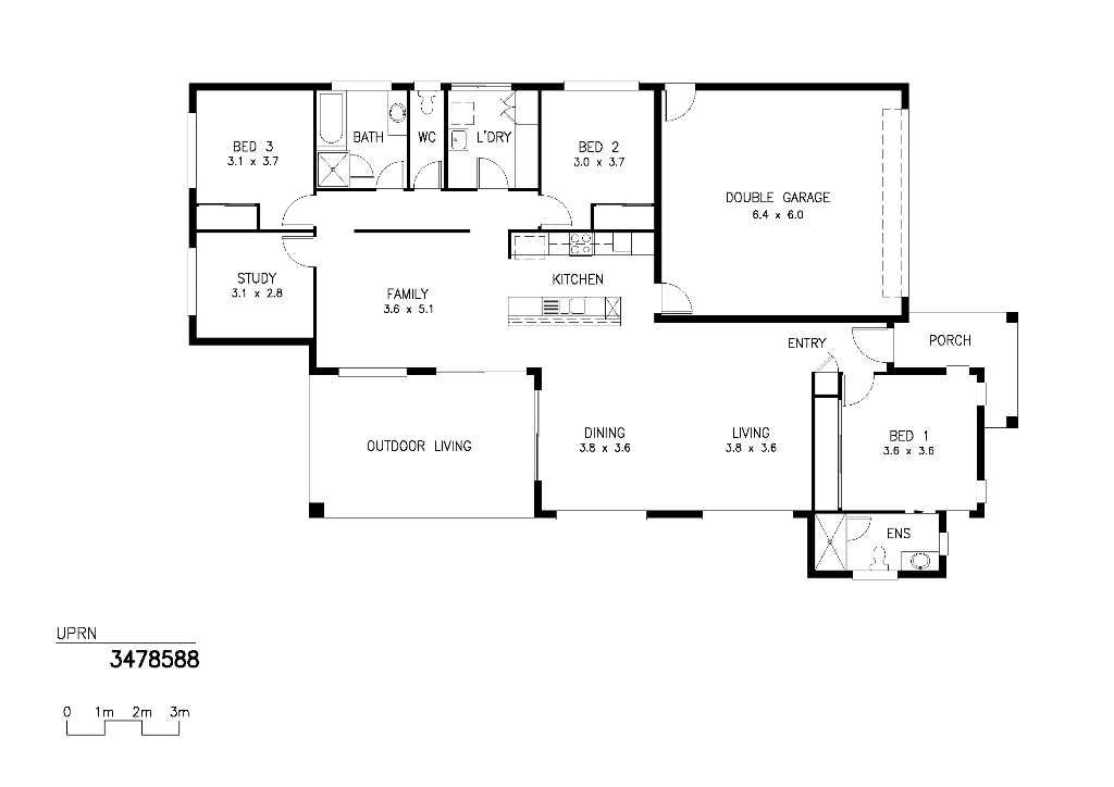
- The home was completed in April 2010 and is a spacious 227m2
- A practical well designed family home with a separate family space
- Built to DHA's high standard it is situated on a sizable 664 m2 block
- Features include four generous bedrooms or three bedrooms plus a study
- Cool floor tiles and Split system air-conditioning throughout
- The kitchen overlooks the dining and living area
- The family bathroom features a bath and separate shower recess
- Direct access into the home from the double attached garage

Under the terms and conditions of the DHA lease DHA throughout the lease term cover the cost of most non-structural repair and maintenance and ‘Like for like’ replacement of a fixed appliance as required.

Rent: $790 per week
Lease end: 23/08/2023
Option available: 1 x up to 36 months
Right to Vary available: 1 x up to 12 months Reduction and 1 x up to 12 months Extension
(Note the option and right to vary is at DHA’s discretion)

In accordance with DHA regulations we advise that this property will be available for private inspection only and to prequalified buyers only. Photos are supplied under agreement by DHA and are for illustration purpose only.

4 2 2 664 m2
Suburb Lyons
Price SOLD for $650,000
Property Type Residential
Property ID 1250
Category House
Land Area 664 m2
Floor Area 227 m2

Agent Details

Leah Gelder photo

Leah Gelder

0439 886 991
View Profile