Sold

FOUR BEDROOM FAMILY HOME – CHECK THE PRICE!

Are you looking for that fourth bedroom to allow the family to spread out? This newly listed property could be the home for you. It is in a nice position too with a local park virtually opposite. As an added bonus the home has been newly painted both inside and outside. Conveniently located just a few minutes drive from the Palmerston City Centre and the recently opened Gateway Shopping Centre.

Gunn is without doubt a family friendly neighbourhood and Sanctuary Lake in Gunn featuring a fabulous playground and BBQ area is the ideal spot for fun family enjoyment.

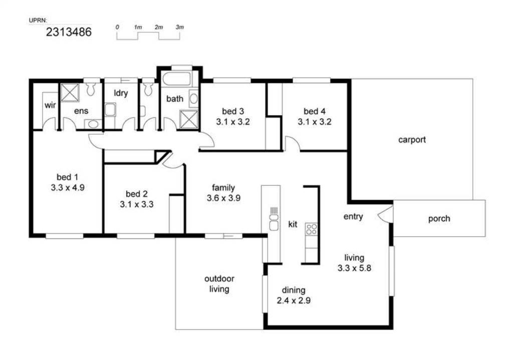
- Four good sized bedrooms for the family each with mirrored robes
- Newly painted inside & outside the home is looking fresh & clean
- Positioned at the top of Uluru Way a no through traffic area
- Popular Sanctuary Lake & all the fantastic amenities on offer is close by
- The lounge room at the front of the home is separate from the dining area
- A practical kitchen with good storage and bench space
- The rear verandah is ideal for outdoor entertaining area
- The family bathroom features both a bath & a separate shower
- Tiled floors & split system air-conditioning throughout the home
- A 640m2 block with a double attached carport & a storage shed

Don’t delay your inspection!
4 2 2
Address 7 Uluru Way, Gunn
Price SOLD for $445,000
Property Type Residential
Property ID 1245
Category House

Agent Details

Leah Gelder photo

Leah Gelder

0439 886 991
View Profile