Sold

JUST RELEASED! WOULD YOU LIKE A HOME IN LYONS?

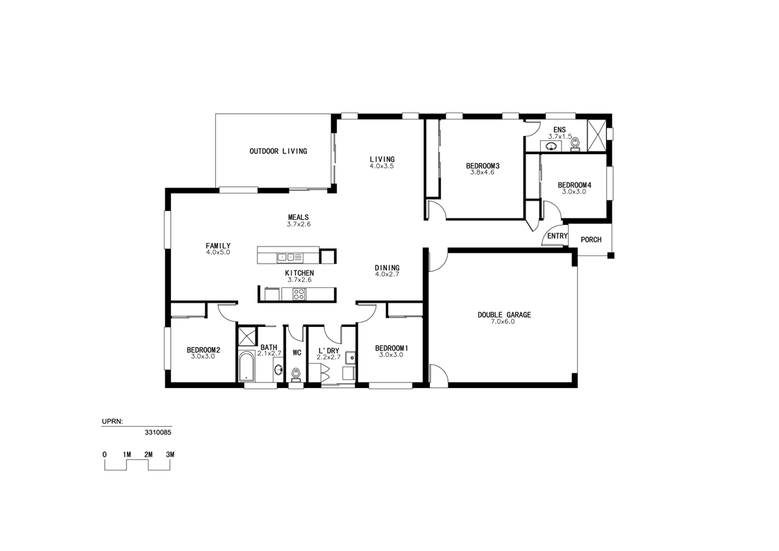
Lyons is a premier suburb and this home is an absolute must to view. You will be pleasantly surprised by the design of the home. Features include a roomy open living space, easily maintained gardens, high private rear fencing and no swimming pool to worry about. If you are thinking of building should bring the family over to check out this property first, buying an established property will save time and definitely be less of a hassle for you.

- The fourth bedroom is right next the master ideal for a young child
- Bedrooms two & three are ideally situated towards the rear of the home
- All four bedrooms are a great size & come with mirrored wardrobes
- Great airflow as the windows is a combination of louvres & sliding windows
- Split system air-conditioning throughout for a comfortable wet season lifestyle
- Convenient dual sliding door access out to the back patio
- The family bathroom includes a bath and separate shower recess
- A secure double garage with direct entry in to the home
- 683m2 block with side access to rear yard, ideal for the boat

Why not call today to book your viewing!
4 2 2
Address 28 Gumimba Crescent, Lyons
Price SOLD for $670,000
Property Type Residential
Property ID 1083
Category House

Agent Details

Leah Gelder photo

Leah Gelder

0439 886 991
View Profile